реферат
Главная

Рефераты по биологии

Рефераты по экономике

Рефераты по москвоведению

Рефераты по экологии

Краткое содержание произведений

Рефераты по физкультуре и спорту

Топики по английскому языку

Рефераты по математике

Рефераты по музыке

Остальные рефераты

Рефераты по авиации и космонавтике

Рефераты по административному праву

Рефераты по безопасности жизнедеятельности

Рефераты по арбитражному процессу

Рефераты по архитектуре

Рефераты по астрономии

Рефераты по банковскому делу

Рефераты по биржевому делу

Рефераты по ботанике и сельскому хозяйству

Рефераты по бухгалтерскому учету и аудиту

Рефераты по валютным отношениям

Рефераты по ветеринарии

Рефераты для военной кафедры

Рефераты по географии

Рефераты по геодезии

Рефераты по геологии

Реферат: Изготовление и сборка оконных блоков

Реферат: Изготовление и сборка оконных блоков

Введение


Для производства изделий из древесины исходный материал в виде досок, листов фанеры и древесных плит (а также круглых древен) требуется предварительно раскроить на заготовки.

Для этой цели используются распиловочные станки: круглопильные или ленточные. Для изготовления прямых заготовок сравнительно небольшой толщины, используются круглопильные станки. Для распиловки толстых заготовок (круглых бревен, брусков) используется ленточный станок, где режущим инструментом служит натянутая на ведущие ролики, бесконечная лента с режущими зубьями. Также ленточная пила используется для изготовления криволинейных заготовок.

КОНСТРУКЦИЯ И ЭКСПЛУАТАЦИЯ ДЕРЕВООБРАБАТЫВАЮЩИХ СТАНКОВ

Назначение станков


Для производства изделий из древесины исходный материал в виде досок, листов фанеры и древесных плит требуется предварительно раскроить на заготовки. Эту технологическую операцию выполняют на круглопильных станках. В зависимости от требований к качеству обработки деталей различают раскрой предварительный и окончательный, чистовой. Бывают следующие виды раскроя на круглопильных станках.

Торцевание досок и брусковых заготовок производят на станках для поперечного раскроя. Станки бывают одно- или многопильные (концеравнители). На многопильных станках можно выпиливать одновременно несколько кратных заготовок. Продольный раскрой пиломатериалов и заготовок осуществляют на круглопильных станках для продольного раскроя. Выпиловка из одной широкой заготовки за один проход одновременно нескольких брусков или реек выполняется на многопильных станках. Пильные валы этих станков могут иметь две, три, пять и более пил.

Часто требуется распиливать материал не только в поперечном и продольном направлениях, но и под косым углом. Такой смешанный раскрой выполняют на универсальных круглопильных станках.

Раскрой листовых материалов и плит на щитовые детали выполняют на раскроечных станках, а опиловку кромок на форматно-обрезных станках. Если требуется получить детали с продольными кромками, то форматно-обрезные станки оснащают дополнительно профильными фрезами.

По расположению пилы относительно распиливаемого материала станки различают с нижним и верхним расположением пилы. Расположение пилы и направление ее вращения выбирают так, чтобы сила пиления прижимала заготовку к базирующим элементам станка. В одних конструкциях станков заготовку подают на пилу, в других вращающуюся пилу надвигают на заготовку.

Главными параметрами круглопильных станков для поперечного и продольного раскроя досок на заготовки являются наибольшая ширина и наименьшая или наибольшая длина распиливаемого материала. Эти размеры определяют габаритные размеры станка.

Для форматных станков главный параметр — наибольший размер раскраиваемых плит. Наибольшая толщина H распиливаемого материала определяет основной параметр станка — мощность привода механизма резания.

Материал, поступающий на круглопильные станки, должен удовлетворять техническим требованиям, иметь допустимые отклонения размеров

Конструкция ленточнопильных столярных станков


Станки ленточнопильные столярные предназначены для прямолинейного и криволинейного пиления досок, щитов и листовых материалов на заготовки. Режущий инструмент станков выполнен в виде бесконечной ленты, на одной кромке которой имеются зубья. Лента надета на два узких шкива, один из которых приводится во вращение от электродвигателя.

В зависимости от размера распиливаемых заготовок станки бывают с диаметром шкивов 400 мм (ЛС40-1), с диаметром шкивов 800 мм и ручной подачей или с автоподатчиком (ЛС80-6).

Станок ленточнопильный столярный ЛС80-6 (рис.1) включает станину 1 С-образной формы, верхний неприводной шкив 2, ленточную пилу 3, ограждение пилы с направляющим устройством 4, наклоняющийся стол 5, нижний приводной шкив 7, который приводится во вращение через ременную передачу от электродвигателя 9. Для выпиливания деталей требуемой ширины служит направляющая линейка 6. Для быстрой остановки нижнего шкива предназначено тормозное устройство, действующее от педали 8.

Шкивы имеют плоский обод с мягким резиновым или кожаным бандажом, который увеличивает сцепление между пилой и шкивом при их движении. Вблизи верхнего шкива имеется устройство для улавливания пильной ленты при ее аварийном разрыве. Конструкция верхнего шкива ленточнопильного станка показана на рис.2. Шкив 2 смонтирован на консоли оси 3, закрепленной в ползуне 5. Ползун установлен на кронштейне 6 так, чтобы он мог перемещаться по высоте с помощью винта 8 от маховичка 12. Вращением маховичка осуществляется первоначальное натяжение пилы 1. Постоянное натяжение пилы при тепловом или механическом удлинении в процессе работы сохраняется с помощью пружины 9, установленной между ползуном и кронштейном на цилиндрической части винта 8. Для предотвращения сбега пилы со шкивов кронштейн можно поворачивать вокруг оси 7 регулировочным винтом 10 и таким образом наклонять при необходимости верхний шкив в обе стороны от вертикали.

Направляющее устройство служит для предотвращения отклонения пилы в сторону и соскальзывания ее со шкивов. Устройство состоит из двух одинаковых блоков, устанавливаемых над рабочим столом и под ним в зоне рабочей ветви пилы. В качестве направляющих элементов используют ролики или бобышки из антифрикционного материала.

Распиливаемый материал на столярных станках подают вручную. При массовой выпиловке прямолинейных деталей подачу механизируют, применяя съемный механизм подачи (рис. 3, а). Он состоит из поворотного кронштейна 3, на конце которого смонтирован приводной рифленый ролик 2. Маховичок 4 предназначен для поворота кронштейна относительно оси 5, укрепленной на столе 1. При повороте кронштейна ролик прижимает обрабатываемый материал к базовой линейке 6 коробчатой формы, внутри которой крепятся оси свободно вращающихся роликов.

Привод подающего ролика (рис. 3, б) осуществляется от гидродвигателя 8 через червячный редуктор 7. Масло в гидродвигатель подается от насоса 10 через дроссель 9, посредством которого бесступенчато изменяют скорость подачи от 1,5 до 35 м/мин.

Наладка и работа на ленточнопильных столярных станках

Наладка станков.

В ленточнопильных столярных станках используют ленточные пилы для распиловки древесины. Пильную ленту поставляют в рулонах длиной 4 и 6 м, шириной (с зубьями) 10... 60 мм толщиной 0,б...0,9 мм. На деревообрабатывающем предприятии ленту размечают на отрезки необходимой длины и разрезают. После этого пилы спаивают, затачивают зубья на заточных станках абразивными кругами и разводят вручную разводкой или на специальных автоматах. После подготовки к работе ленточные пилы должны удовлетворять следующим требованиям: пильное полотно не должно иметь изгибов и трещин, количество зубьев пилы должно быть четным, последовательность их развода — правильной; место спайки должно быть тщательно зачищено напильником или наждачной шкуркой и на 0,1 ...0,2 мм быть тоньше толщины полотна пилы; все зубья остро заточены без засинения, заворотов вершин и крупных заусенцев; профиль зубьев столярных пил должен соответствовать величинам, указанным на рис.4.

Шаг зубьев t столярных пил в зависимости от высоты зубьев h должен быть следующим:

t, мм

6

8

10

12

h, мм

3,0

4,0

5,0

6,0


Развод зубьев на сторону для древесины двойных пород (сосна, ель) составляет 0,25... 0,30 мм, для древесины твердых пород (дуб, бук, ясень) — 0.20...0.25 мм.

Точность развода контролируют индикаторным разводомером или шаблоном. Допустимое отклонение в величине развода отдельных зубьев пилы ±0,05 мм.

Вследствие переточек ширина ленточных пил уменьшается. Допускается использовать ленточные пилы после переточек, если их ширина равна или больше половины первоначальной ширины. Длину пильной ленты Lнаиб (мм) определяют по формуле

Lнаиб ==D+21наиб

где D — диаметр пильного шкива, мм; 1наиб — наибольшее расстояние между осями пильных шкивов, мм.

Для снижения напряжений, возникающих при изгибе пилы на шкивах, толщину пилы необходимо принимать не более 0,001 диаметра пильного шкива. При продольной распиловке ширину пилы выбирают в зависимости от ширины пильных шкивов и принимают равной 40...50 мм.

При криволинейном пропиле ширина пилы должна быть такой, чтобы обеспечивался заданный радиус кривизны детали. Если для выпиловки кривых деталей применяют широкие пилы, то возникают отклонения пропила от намеченной линии и при значительном закруглении пила может соскользнуть со шкивов. Для криволинейной распиловки используют узкие пилы шириной 10...15 мм.

Ленточную пилу устанавливают в станок следующим образом. Опускают верхний пильный шкив и открывают ограждения. Ленточную пилу надевают сначала на верхний шкив, а потом на нижний. Широкую пилу располагают на шкивах так, чтобы зубья ее выступали за край обода шкивов. Если зубья касаются бандажа шкивов, нарушается их первоначальный развод и пила будет при распиловке отклоняться в сторону. Поворачивая рукой верхний шкив и регулируя положения оси шкива маховичком механизма наклона, добиваются правильного движения ленточной пилы.

Нижний пильный шкив перемещают в осевом направлении регулиро­вочными винтами, добиваясь расположения шкивов в одной вертикальной плоскости. Натягивают пилу, поднимая верхний шкив. При подъеме следует следить за тем, чтобы указатель пружинного натяжного устрой­ства находился посередине шкалы. Чрезмерно сильное натяжение пилы вызывает быстрый износ станка и разрыв пилы, слабое натяжение — соскальзывание пилы со шкивов в процессе резания.

Усилие натяжения ленточных пил выбирают в зависимости от толщи­ны и ширины полотна пилы:


Толщина пилы, мм.

0,8

0,9

1,0

Усилие натяжения пилы, Н, для пил шириной, мм:




25

2500

3000

3500

50

4000

5000


Включая кратковременно электродвигатель вращения шкивов, прове­ряют правильность движения пильной ленты, после чего приступают к регулированию направляющего устройства. Направляющее устройство пе­реставляют по высоте в зависимости от толщины распиливаемого мате­риала. Расстояние до верхней пласти заготовки должно быть не более 10...15 мм. Боковые направляющие регулируют так, чтобы между ними и пилой был зазор 0,05...0,10 мм. Величину зазора контролируют щупом. Направляющие не должны зажимать пилу или отгибать ее в сторону. Для предотвращения соприкосновения зубьев пил с направляющими их перед­няя кромка должна располагаться на расстоянии 5...10 мм от впадины зубьев.

Задний опорный ролик устанавливают так, чтобы между тыльной кромкой пилы при холостом ходе был небольшой зазор. Закрыв огражде­ние шкивов, приступают к пробной обработке деталей. Если ведется криволинейная распиловка по разметке, то стол станка должен быть свободным от посторонних предметов, мешающих подаче заготовки.

Направляющую линейку устанавливают на столе станка на расстоянии, равном ширине выпиливаемой дощечки, и надежно фиксируют. Поверх­ность линейки должна быть параллельна полотну пилы. Точность положе­ния направляющей линейки контролируют мерительной линейкой или штангенциркулем. При массовой распиловке деталей прямолинейной фор­мы на станке монтируют подающий механизм. Перед установкой необ­ходимо снять со станка качающуюся часть ограждения пилы и направ­ляющую линейку. Подающий механизм крепят болтами к столу станка и настраивают в зависимости от ширины распиливаемой заготовки. Скорость механизированной подачи выбирают в зависимости от высоты пропила


Высота пропила, мм

20

40

60

100

130

150

200

300

Скорость подачи, м/мин:









для древесины мягких пород

35

35

16,5

9

6

5

3

1,5

для древесины твердых пород

35

32,5

13

7

5

4

2,5

1


Шаблоны используют при массовом производстве деталей с криволи­нейными поверхностями. Конструкция шаблона определяется формой дета­ли, способом ее базирования и закрепления. Правильное размещение заготовки в шаблоне обеспечивается настройкой и закреплением упоров в требуемом положении.

При выпиловке круглых деталей используют специальное приспособ­ление (рис. 5). Приспособление состоит из С-образного основания— скобы 4, на одном конце которой установлен вращающийся диск 5 для базирования заготовки 2, а на другом — зажимное устройство 3. При­способление укрепляют на столе 1 станка так, чтобы расстояние от оси вращения заготовки до пилы было равно радиусу готовой детали. Вращая заготовку вручную или с помощью механического привода, выпиливают круглую деталь. Настройка стола ленточнопильного столярного станка необходима при выпиловке деталей, у которых поверхность обработки расположена под углом к базирующей поверхности заготовки (рис. 6). В этом случае стол 5 открепляют, наклоняют на требуемый угол, пользуясь круговой шкалой 2, и закрепляют в заданном положении.

Работа на станках.

В зависимости от вида выполняемой работы может быть прямолинейная и криволинейная распиловка. Прямолинейную распиловку материала ведут по разметке или с использованием направ­ляющей линейки. Материал укладывают на стол станка и прижимают к направляющей линейке. При ручной подаче заготовку надвигают на пилу равномерно, без рывков. Скорость подачи выбирают такую, чтобы станок работал спокойно, и исключались перегрузки. Вырезанные детали склады­вают в штабель.

При криволинейной распиловке по разметке необходимо, скорость подачи снижать в местах с малым радиусом закруглений. При уводе пилы в сторону от намеченного реза надо подать заготовку назад, немного повернуть ее относительно пилы и сделать новый пропил.

При распиловке необходимо внимательно следить за положением пальцев рук относительно пилы и всегда держать их на безопасном расстоянии. Вибрация станка и пилы свидетельствует о плохой подготовке пилы к работе, а также несоответствии точности станка установленным нормам. Непараллельность поверхностей выпиленной детали допускается не более 0,5 мм на длине 1000 мм, шероховатость — не более 200 мкм. При неудов­летворительной работе станка следует отыскать причину неполадки, устра­нить ее или отремонтировать станок.

Технические характеристики ленточных столярных станков


Наибольшая высота пропила, мм 400

Ширина отпиливаемой части, мм 750

Диаметр пильного шкива, мм 800
Размер стола, мм 1000х1000

Частота вращения пильных шкивов, мин–1 950

Скорость резания, м/мин 40

Мощность электродвигателей, кВт 5,5

Габаритные размеры (длина, ширина, высота) 1980х1000х2300

Масса, т 1,4

ОХРАНА ТРУДА И ПОЖАРНАЯ БЕЗОПАСНОСТЬ

Техника безопасности при работе на деревообрабатывающих станках

Прежде чем приступить к работе, оператор обязан пройти вводный инструктаж по общим вопросам техники безопасности на предприятии и первичный инструктаж по правилам техники безопасности на рабочем месте. Кроме того, рабочие периодически должны проходить повторный производственный инструктаж по технике безопасности через каждые три месяца.

Результаты инструктажа с оценкой знаний правил техники безопасно­сти записывают в специальный журнал. Рабочему вручается памятка или инструкция по правилам техники безопасности, разработанная на пред­приятии.

Перед работой на станке необходимо изучить руководство по эксплуа­тации станка, а также руководство по эксплуатации режущих и измери­тельных инструментов.

Наладку и настройку оборудования следует выполнять только при вы­ключенном вводном рубильнике. Во время выполнения работ у станка на видном месте должна быть выставлена табличка с надписью «Идет на­ладка». Все металлические части станка заземляют.

Перед началом работы необходимо привести в порядок рабочую одеж­ду: застегнуть или завязать концы рукавов, убрать свисающие концы ха­лата, волосы закрыть головным убором.

Не допускается загромождать отходами или готовыми деталями рабо­чие места, проходы, подходы к станкам, механизмам и электроаппаратуре. Рабочее место должно быть подготовлено согласно требованиям техноло­гии выполнения операций.

Запрещается подавать в станок заготовки, размеры которых больше или меньше предусмотренных технологическим процессом. Не следует брать или подавать через работающий станок какие-либо предметы. Во время работы станка не разрешается открывать или снимать ограждения и предохранительные устройства, подтягивать болты, гайки и др. При работе на станках с повышенным уровнем шума следует пользоваться индивидуальными средствами защиты от шума.

Не следует досылать обрабатываемый материал в станок руками или металлическими предметами. Запрещается измерять обрабатываемую де­таль на работающем станке.

При возникновении вибрации станок следует выключить, проверить надежность крепления инструмента и качество его балансировки.

Снимать со шкивов и надевать на них ремни, отмыкать ограждения инструментов следует только после полной остановки вращающихся частей.

Запрещается пользоваться напильником, шаберами и другими инстру­ментами без деревянных ручек или с неисправными ручками. Поверхность рукояток должна быть гладкой, ровно зачищенной, без трещин и задиров. При работе с тяжелыми грузами рабочий должен знать и строго со­блюдать правила техники безопасности для стропальщиков. Нельзя на­ходиться в зоне действия автопогрузчиков, а также в местах, над которыми перемещаются грузы.

Пожарная безопасность

Пожары на деревообрабатывающих предприятиях в основном возника­ют вследствие нерегулярной и небрежной уборки помещений, неправиль­ного обращения с электрическими установками, несоблюдения правил хра­нения пожароопасных материалов и курения в запрещенных местах.

В деревообрабатывающих цехах сосредоточено большое количество легковоспламеняющихся материалов: древесных отходов, стружек, щепы, досок, лаков, красок и т. п. Древесная пыль является взрывоопасной и скопление ее на рабочих местах, элементах станков, электродвигателях и радиаторах отопления недопустимо.

При возникновении загорания необходимо срочно вызвать пожарную команду по телефону 01 или по пожарному извещателю и до прибытия пожарной команды принять меры по ликвидации загорания имеющимися средствами пожаротушения.

Для предупреждения возникновения пожаров в цехах и на рабочих местах необходимо строго соблюдать следующие противопожарные пра­вила.

Все электрические провода должны быть тщательно изолированы, элек­трические аппараты и электродвигатели заземлены и защищены от попа­дания на них посторонних предметов. По окончании работы и во время перерыва электропривод необходимо выключать, а подводящие линии обесточивать.

В цехах и на рабочих местах запрещается курить и выполнять опера­ции, которые могут вызвать появление искр или открытого огня.

Необходимо систематически удалять древесную пыль и стружку с эле­ментов оборудования, электродвигателей и электропроводок.

Запрещается сушить спецодежду, лесоматериалы и другие воспламе­няющиеся предметы на приборах отопления, производственных и отопи­тельных печах. Рабочие места, где имеется повышенная опасность возникновения по­жара, должны быть снабжены огнетушителями, ящиками с песком и ем­костями с водой.

Не допускается работать на шлифовальных станках при отключенной вытяжной вентиляции.

Бывшие в употреблении обтирочные материалы, концы, тряпки и т. п., пропитанные керосином, бензином, маслами и прочими горючими веще­ствами, необходимо складывать в специальные металлические ящики с крышками. Над местом установки ящиков должна быть надпись «Ящик для обтирочных концов».

Нитрокраски, лаки и другие химикаты хранят в специальных изолиро­ванных помещениях или в шкафах и ящиках.

Запас жидкого топлива, смазочных материалов и горючих жидкостей, находящихся в рабочем помещении, не должен превышать суточного рас­хода. Хранить их нужно только в специальной плотно закрываемой метал­лической таре, которая после окончания работы ставится в запираемые металлические ящики или шкафы.


Изготовление и сборка оконных блоков

Окна деревянные и балконные двери для жилых и общественных зданий (ГОСТ 11214—65) подразделяются на две серии: С — со спаренными оконными пе­ре­­плё­та­ми и дверными полотнами; Р—с двойными раздельными переплета­ми и двой­ными полотнами

Оконные блоки изготовляют с неравными и равными створками. В блоках с не­рав­­ны­ми створками (рис 80, а) узкая створка служит форточкой для про­ветривания по­­ме­­щения

Оконные блоки с равными створками (рис 80,б) выпускают с форточками и без них. Оконные блоки со спаренными переплетами и дверные балконные блоки со спа­­рен­ными полотнами делают с наплавом, а с раздельными пере­плетами и по­лот­на­ми — с наплавом и без наплава (рис 80 в).

Дверные балконные блоки показаны на рис. 81.

Выпускаемые оконные и балконные дверные блоки маркируют. Марка со­стоит из бук­венных индексов и двух двузначных цифр обозначающих высоту и ширину про­­ема в дециметрах. Буквенные индексы обозначают следующее: ОС—оконный блок со спаренными переплетами; ОР—оконный блок с раз­дельными переплетами; БС—балконный дверной блок со спаренными полот­нами; БР—то же с раз­дель­ны­ми

полотнами. Оконные блоки с рав­ными створ-коми без фор­то­чек для жилых зда­ний и трех­створчатые для об­щест­вен­ных зданий без фрамуг обо­з­начают буквой А в конце марки.

Оконные и дверные бал­кон­ные блоки с форточками или фрамугами обозна­чают в кон­це марки до­пол­ни­тель­ны­ми буквенными индексами:

В — с форточкой или верх­ней фра­мугой, Г — с верхней и ниж­ней фрамугами, Е — с ниж­ней фра­мугой. Трех­створ­ча­тые оконные блоки с верх­ней фрамугой для об­щест­вен­ных зданий обоз­на­ча­ют в кон­це марки буквой И.

Размеры оконных проемов для жилых и общественных зда­ний соответствуют мо­дулю 1М, равному 100 мм. Ос­нов­ные размеры проемов ре­ше­ны в укрупненном модуле ЗМ (300 мм). Высота проемов для жи­лых зданий принята равной 12М (1200 мм) и 15 М (1500 мм); для общественных зда­ний—18М (1800 мм) и 21М (2100 мм).

Ширина проемов принята 5М, 9М, 12М, 14М, 15М, 18М, 21М для жилых зда­ний и 9М,

12М, 18М, 21М, 24М и 27М для общественных зданий.




В оконных блоках со спаренными переплетами толщина наружной и внут­ренней створок одинаковая—42 мм, что упрощает технологию их производ­ства.

В связи с тем, что оконные блоки серии С можно изготовлять без импоста, створ­ки делают с правым притвором. Для обеспечения прочности навески боль­ших раз­меров створок, створки спаренных оконных переплетов высотой более 1400 мм или шириной свыше 800 мм при высоте более 1000 мм навешивают на три петли — две верхние и одну нижнюю. Остальные створки навешивают на две петли. Дверные бал­конные полотна навешивают на три петли, располагае­мые равномерно по вы­со­те полотна. Оконные и дверные балконные блоки для жилых зданий остекляют стек­лом толщиной 2,5—-3 мм, а для общественных зданий — толщиной 3—4 мм.

Для снижения воздухопроницаемости по периметру притвора в переплетах устанавливают уплотняющие прокладки из шерстяного шнура, пенополиуретана и др. Прокладки должны быть упругими, прочными, свето- и морозостойкими, дол­го­веч­ными. Пенополиуретановые прокладки приклеивают клеем повышен­ной во­до­стой­кости (КН-2, № 88). Шерстяной шнур крепят к наплаву мелкими оцинкованными гвоз­дями длиной 10—15 мм с шагом 150—200 мм. Чтобы не смять шнур, гвозди за­би­вают в край его, сохраняя по всему периметру створки равномерную толщину шну­ра. При установке шнур не следует сильно натяги­вать, так как он от этого вы­тя­ги­вается и теряет свои упругие свойства.

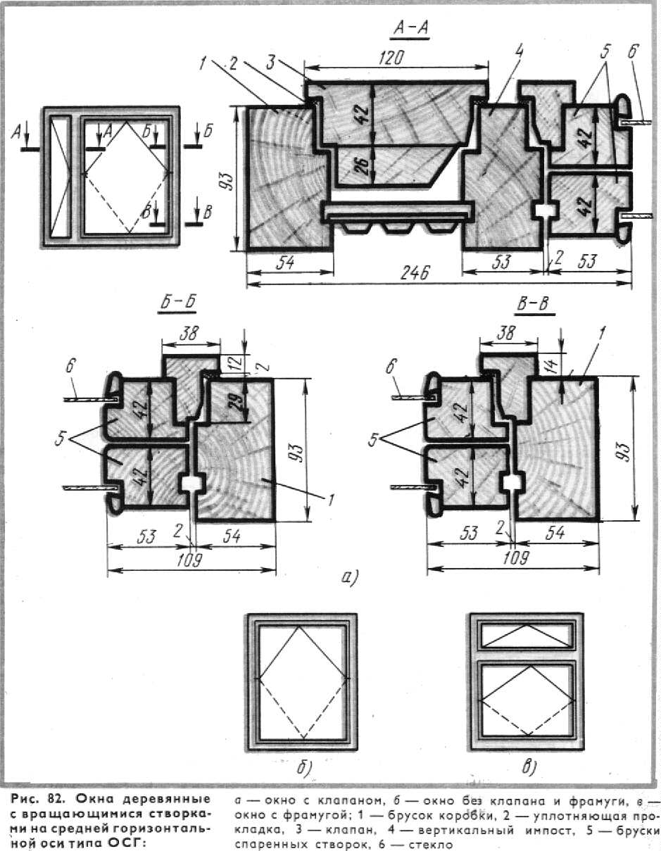
Оконные блоки деревянные со спаренными створками, вращающимися на средних осях, для гражданских зданий подразделяются на два типа: вращаю­щиеся на сред­них горизонтальных осях — среднеподвесные ОСГ, имеющие дополнительно вен­ти­ля­ционные клапаны или верхние фрамуги, и окна со створ­ками, вращающимися на сред­них вертикальных осях, —среднеповоротные ОСВ.

Окна среднеповоротные ОСВ для проемов 18М. 21М и шириной 15М без фра­муг дают возможность делать сплошное ленточное остекление в зданиях кар­касной конструкции с двухрядной разрезкой навесных панелей.

Окна с проемом шириной 13,5М можно устанавливать рядом и этим самым заполнить проем шириной 27М.

Для окон с клапанами принята ширина проема 12М, 15М, 18М, 21М, а высота 12М и 15М; для остальных окон, в том числе и с фрамугами, ширина проема принята 13.5М, 15М, 18М, 21М, высота 18М, 21М. Общий вид и сечения окон показаны на рис. 82.



Окно деревянные для зданий промышленных предприятий (ГОСТ 12506—67) предназначены для заполнения оконных проемов в зданиях любой этажности. По это­му ГОСТу окна подразделяются на две серии: Н —с наружным открыванием створок, В—с внутренним открыванием створок.

Окна серии Н изготовляют без наплава с одинарными или со спаренными пе­ре­плё­тами, серии В—с наплавом со спаренными переплетами.

В одноэтажных зданиях рекомендуется применять окна с наружным и внут­ренним открыванием створок, а в многоэтажных —с внутренним открыванием.

Оконные проемы в зданиях промышленных предприятий могут заполняться од­ним или несколькими оконными блоками по высоте и ширине

Оконные блоки обозначают марками, состоящими из буквенных индексов и цифр. Буквенные индексы обозначают Н — наружное открывание, В — внут­реннее от­крывание, С — спаренные переплеты

Цифра, стоящая после буквенных индексов, обозначает номер блока, а цифра, сто­­ящая после дефиса, — ширину брусков коробок в миллиметрах. Например, марка оконного блока НС6-124 обозначает, что оконный блок на­руж­но­го открывания, спа­рен­ной конструкции, типа 6 с шириной коробки 124 мм.

Окон­ные блоки при заполнении проемов по высоте одним блоком имеют сле­ду­ю­щие размеры: серии Н—высоту 1164, 1764 мм, ширину 1461, 2966 и 4490 мм, се­рии В—высоту 1182, 1782 мм, ширину 1445, 2693, 2943 мм, а при за­полнении по вы­со­те не­сколькими блоками имеют размеры: серии Н — высо­ту 1164, 1764 мм, ши­ри­ну 2966 и 4490 мм; серии В—высоту 1182, 1782 мм, ши­рину 2693, 2943 мм.

Для жилых и общественных зданий, возводимых в I и II под­зонах Северной стро­­ительно-климати­ческой зоны, а также для районов с рас­чет­ной темпера­турой на­ружного воздуха -40С и ниже (при со­ответ­ствующем обоснова­нии) применяют де­ре­вянные окна и бал­кон­ные двери с тройным остеклением и трой­ным уплотнением при­творов (ГОСТ 16289—70) (рис. 83).

Для жилых зданий при­меняют окна од­но­створчатые с узкими створками высотой 863, 1163, 1463 мм и шириной 880, 1154, 1329, 1379, 1479,

2072 мм и окна с фор­точ­ка­ми – полу­створ­ками вы­сотой 1163, 1463 мм и шириной 1154, 1329, 1379, 1479, 2072 и 2172 мм.

Для общественных зданий применяют окна высо­той 1758 мм и шириной 875, 1150, 1350 и 1758 мм. Балконные двери для жилых и общественных зданий име­ют высоту 2198, 2398 мм, ширину 700 и 875 мм.

Створки спаренных переплетов высотой более 1400 мм или шириной более 800 мм (при высоте более 1000 мм) навешивают но три петли—две верхние и одну нижнюю, двери балконные — на три петли, располагаемые равномерно по высоте.

Для заполнения оконных проемов в животноводческих и птицеводческих зда­ни­ях применяют окна, изготовленные по ГОСТ 16470—70. В соответствии с этим ГОСТом окна бывают: с одинарными переплетами — с глухим, наружным или вну­трен­ним открыванием створок, со спаренными переплетами—с внут­ренним от­кры­ва­ни­ем створок, с раздельными переплетами—с открыванием створок в разные сто­ро­ны.

Изготовление и сборка оконных блоков с раздельными переплетами

Изготовляют столярные изделия, в том числе оконные блоки, в основном на де­ре­вообрабатывающих предприятиях. На этих предприятиях древесину обра­ба­ты­ва­ют на поточных и полуавтоматических линиях с применением спе­циализированного обо­рудования.

На предприятиях с небольшим объемом производства оконные блоки из­го­то­вля­ют на позиционных станках общего назначения.

Предусмотрено, что предприятия получают обрезные пиломатериа­лы, которые рас­краивают на полуавтоматической линии для поперечного рас­кроя пи­ло­ма­те­риа­лов. Она состоит из последовательно расположенных: ролико­вого конвейера, круг­ло­пиль­ного станка ЦПА-40 (с механизированной подачей), конвейера, желоба, при­рез­но­го станка с гусеничной подачей ЦДК-4-2 и конвей­ера. Пиломатериалы кладут на приводной роликовый конвейер, прижимают к направляющей линейке и подают к упору, при этом пиломатериал, прижатый к упору, нажимает на кнопку, вмон­ти­ро­ван­ную в нем, которая включает элект­родвигатель привода круглопильного станка для по­перечного раскроя. Одно­временно с этим останавливается роликовый конвейер. Вмес­те с включением пилы подается суппорт с вращающимся пильным диском и дос­ки разрезаются. После торцовки суппорт пилы возвращается в исходное по­ло­же­ние и приводит в действие сбрасыватель, которым отрезанный кусок доски подается на ленточ­ный конвейер. Сторцованный кусок доски по ширине раскраивают на при­рез­­ном станке ЦДК-4-2.

Заготовки, полученные после раскроя досок, поступают на полуавтомати­ческую ли­нию по обработке брусковых деталей.

В линии по обработке брусковых деталей последовательно расположены фу­го­валь­ный, четырехсторонний продольно-фрезерный и шипо­резный станки. Станки свя­заны между собой транспортными механизмами. Но этой линии обрабатывают брус­ки окон, коробки с четырех сторон с созда­нием профиля, а также зарезают ши­пы. На предприятиях, где нет таких линий, пиломатериалы раскраивают по длине на за­данный размер на круглопильных станках для поперечного раскроя ЦПА-40, а по ши­рине—на круглопильных станках для продольного раскроя ЦДК-4-2. При раскрое пиломатериалов в первую очередь выкраивают длинные детали, более короткие детали получа­ют попутно или после отбраковки длинных деталей. Очень короткие детали (менее 500 мм) заготовляют в кратных размерах, так как их трудно обрабаты­вать короткими.

При раскрое по длине к заданному размеру нужно добавлять припуск на даль­ней­шую оторцовку (ГОСТ 7307—66).

Брусковые детали обрабатывают следующим образом. Пласти и кромки у по­ко­роб­ленных брусков фугуют на фуговальных станках, после чего их фрезеруют на че­ты­рехсторонних продольно-фрезерных станках. Детали окон­ных коробок с большим се­чением фрезеруют на мощных станках С26-2.

Сучки заделывают после обработки деталей на линии, так как после обра­ботки луч­ше видны дефектные места. На некоторых заводах сучки заделывают до об­ра­бот­ки, — в результате деталь получается более чистой, так как пробки счищают в про­цессе обработки детали на продольно-фрезерном станке. По­рядок заделки суч­ков (до или после фрезерования) зависит от местных условий завода. За­де­лы­вать суч­ки, трещины, червоточины, отколы и отщепы допуска­ется только при условии тща­тельного выполнения работ с зачисткой мест за­делки.

На тех заводах, где имеются четырехсторонние продольно-фрезерные стан­ки с пя­­тью валами, бруски обвязки переплетов, отлив и нащельник можно за­готовлять в крат­ных размерах по ширине, с тем, чтобы на станке одновременно обрабатывать по два бруска и, устанавливая строгальную пилу на пятом горизонтальном валу, раз­ре­зать их после фрезерования по ширине.

Торцуют нащельники, отливы и раскладки по стеклу на универсальном станке или на специальном станке для усовки.

Пиломатериалы на бруски оконных коробок раскраивают на линии по рас­крою за­­готовок, после чего их обрабатывают на позиционных станках.

Прошедшие обработку бруски створок, форточек, коробок выборочно про­ве­ря­ют, а затем передают на буферный склад для комплектации и временного хранения.

Сбор­ка оконных блоков состоит из следующих операций: сборка оконных ство­рок, фор­точек на клею; выдерживание склеенных створок и фор­точек, не­об­хо­ди­мое для схва­тывания клея; обработка по периметру; зачистка или шли­фо­ва­ние по­верх­нос­тей: выборка паза под отлив; прорезка гнезд под петли; постановка полупетель; пригонка форточек к створке и навеска на петли; постановка отлива и нащельников; сборка коробки; вгонка и навешивание створок в коробку.

Оконные створки, форточки, фрамуги и коробки собирают в сборочном станке (вай­ме). Предварительная сборка створок, фрамуг, форточек и коробок про­из­во­дит­ся лишь в том случае, когда необходима подгонка брусков. Ее начинают с внутренних брусков, горбыльков, импостов, после чего собирают наруж­ные обвязки.

Вязку брусков столярных изделий выполняют на клею с постановкой на углах со­пря­жений деревянных нагелей. Вместо деревянных нагелей ставят металлические, име­ющие в сечении форму креста. Металлические нагели дела­ют из мягкого металла, лег­ко обрабатываемого даже рубанком. Нагели следует ставить заподлицо с плос­кос­тью.

Отверстия под нагели выбирают электросверлилкой или коловоротом. На не­ко­то­рых предприятиях отверстия под нагели выбирают сразу по двум или четырем уг­лам спе­циальным приспособлением (рис 85), состоящим из кар­каса (рамы), ус­та­на­в­ли­ва­е­мо­го на станке по сборке окон. К стойкам каркаса крепят швеллеры 10, по которым пе­ре­двигается тележка 2 с кронштейнами 3, 4, причем к кронштейнам 3 шарнирно при­креп­лен рычаг 6, с помощью которого тележка 2 может двигаться вперед и назад.

К кронштейнам 4 прикреплены направляющие стаканы 5, через которые проходят што­ки 9, соединенные шарнирно с рычагом 6. На штоках 9 располо­жена траверса 8 с за­креп­ленными на ней электросверлилками. Электросверлилки в зависимости от размеров расстояний между отверстиями могут пере­двигаться по траверсе.

Работающий рычагом 6 устанавливает электросверлилки в нужном поло­жении над собираемой створкой, коробкой, затем опускает рычаг, и электросверлилки, также опускаясь, высверливают отверстия.

Собранные изделия укладывают на подстопное место для выдержки, необ­хо­ди­мой для схватывания клея. В дальнейшую обработку изделие должно по­ступать только пос­ле схватывания клея в шиповом соединении. Процесс сушки клеевого соединения мож­но ускорить, применяя токи высокой частоты в сбо­рочном станке после обжатия брус­ков. Собранные створки, фрамуги и форточки должны иметь припуск до 2 мм на сто­рону для обработки по периметру и по толщине 0,5 мм для снятия провесов.

До вгонки (постановки) в коробки оконные створки, фрамуги, форточки об­ра­батывают по периметру для придания правильной геометри­ческой формы. Од­но­вре­мен­но с обработкой по периметру створки, фрамуги фальцуют, образуя четверть, не­об­хо­димую для притвора. При обработке фор­точки по периметру создают профиль об­ра­бот­ки, зеркальный профилю брусков и горбыльку, чтобы при постановке форточки на мес­то она точно подходила к профилю брусков и горбыльку.

Створки, фрамуги и другие детали на небольших предприятиях по перимет­ру об­ра­батывают на фрезерных станках с применением шаблонов (рис 86) На более круп­ных предприятиях створки, фрамуги обрабатывают на линиях.

На линии ДЛ-5 (рис. 87) обрабатывают плоскости створок со снятием прове­сов и по периметру с созданием притвора (четверти). В состав линии входят: станок для снятия провесов, продольно-фрезерные станки и разгрузочное устройство.

Линия работает следующим образом. Створки поступают на станок 1 для снятия про­ве­сов. На нем под углом 55 расположены два рейсмусовых вала с ножами: один вал над об­ра­батываемой створкой, а другой под ней. При движе­нии створки ножевыми валами сни­маются провесы и зачищается плоскость створки. После обработки плоскостей створ­ка поступает на продольно-фрезер­ный станок 2, где обрабатываются продольные кром­ки, после чего на станке 3 обрабатываются поперечные кромки створки. На линии можно обрабатывать створки высотой до 1800 мм, шириной 475—850 мм и толщиной 42: 62 мм.

Вгонку и навешивание форточек в створку производят на рабочем месте.

В связи с тем, что форточку обрабатывают на фрезерном станке в шаблоне, до­пол­нительных работ по пригонке форточки к створке не требуется. Отлив на форточке не ставится, так как в нижнем бруске форточки отлив составляет одно целое с бруском.

Отлив, нащельники, заранее прирезанные в размер, во внутренней и наруж­ной створках ставят на рабочем месте. Отлив (врезной) ставят на клее повышен­ной водостойкости с креплением шурупами. Нащельник крепят к створке так­же на клее с привертыванием шурупами. Нащельник высотой до 1200 мм крепят 4 шурупами, а высотой 1200—1800 мм—5—6 шурупами.

Коробки собирают в сборочном станке/ Коробки без предварительной под­гонки брусков собирают следующим образом. В станок укладывают бруски коробки, обжимают их, следя за тем, чтобы в шиповом соединении бруски плотно подходили один к другому. Правильность сборки коробки проверяют шаблоном с угла на угол. После этого в местах шиповых соединений высверли­вают отверстия под нагели, которые ставят на клею заподлицо с плоскостью коробки.

Трудоемкой операцией является навешивание створок с врезкой петель. На боль­шин­стве деревообрабатывающих предприятий эта операция механи­зирована. При от­сут­ствии станков для врезки петель используют шаблон Павлихина (рис. 88), пред­став­ля­ю­щий собой рейку 1 с упором 3 и двумя скобами 2 с заточенными фасками. Размеры скоб со­от­ветствуют размерам петель. При разметке шаблон кладут на кромку створки по упо­ру, а затем легким ударом по скобе переносят ее отпечаток на створку и по нему в даль­ней­шем прорезают гнездо под петлю. Аналогичным образом делают разметку на ко­роб­ках, а также дверных полотнах. По полученной разметке стамеской с упором прорезают гнез­да под петли. Упор стамески позволяет заглубить лезвие лишь на заданный размер. Глу­бина гнезда под петлю должна точно соответствовать толщине ее, с тем чтобы после установки поверхность петли была заподлицо с древесиной.

Вгонка и навешивание створок в коробку производится на специальных столах, име­ю­щих длину и ширину, соответствующую наибольшему размеру оконного блока, и высоту до 900 мм. На предприятиях с большим объемом про­изводства вгонка и навеска створок производится на конвейерах с заданным ритмом.

Процесс вгонки и навешивания оконных створок в коробку состоит из сле­дующих основных операций: подготовки створок; навешивания на петли. зачистки провесов и устранения других дефектов; упаковки блока (расшивки планками) для перевозки его в малярное отделение. При вгонке переплетов в коробку сначала навешивают наружные переплеты. В том случае, когда окон­ный блок имеет помимо створок и фрамугу (для общественных зданий), сначала подгоняют фрамугу к коробке.

После проверки правильности прифальцовки фрамуги к импосту ее крепят к коробке шурупами, завертываемыми под углом 45, причем в первую очередь крепят вер­ти­каль­ные бруски фрамуги.

Неоткрывающиеся фрамуги подгоняют плотно к коробке без зазоров, после чего за­креп­ляют их шурупами. Открывающиеся фрамуги подгоняют к коробке, навешивают на пет­ли, затем подгоняют створки. Зазор между фрамугами и ко­робкой должен быть не бо­лее 2 мм. При подгонке створок тщательно прове­ряют правильность притвора, т. е. плот­ность прилегания их к четвертям короб­ки. При навешивании створок на петли следят за тем, чтобы они открывались свободно и не пружинили. Внутренние створки подгоняют так же, как и наруж­ные.

В процессе подгонки следят, чтобы все элементы оконного блока были глад­ко об­ра­бо­та­ны и в местах соединения (фальцовки) плотно пригнаны. Петли в брусках створок и ко­робки должны быть врезаны заподлицо, с тем чтобы створки плотно закрывались, не пру­жинили и плавно открывались. Крепить петли нужно на все шурупы, т. е. число шу­ру­пов должно соответствовать числу отверстий. Петли на окнах врезают на расстоянии 200 мм от четверти коробки. Оконные ручки крепят на расстоянии 1500—1600 мм от пола, а дверные для балконных дверей — на расстоянии 950 мм от пола. Оконные приборы к окнам крепят шу­рупами с потайной головкой, фрамужные приборы располагают таким образом, чтобы ими удобно было пользоваться (без применения подставок).

Изготовление и сборка оконных блоков со спаренными переплетами

Оконные блоки со спаренными переплетами изготовляют в основном из спе­ци­фи­ка­цион­ных пиломатериалов, выпиливаемых по заданным размерам в лесопильном цехе или пос­тавляемых со стороны.

Раскрой пиломатериалов. После сушки пиломатериалы рас­краивают по длине, а при на­доб­ности и по ширине на полуавтоматической линии по раскрою пиломатериалов. В слу­чае отсутствия линии пиломатериалы раскраивают на круглопильных станках.

Короткомерные пиломатериалы, по­лу­чаемые при раскрое, используют для изготовления деталей оконных бло­ков, сращивая их по длине. Для этого их предварительно раскраивают на нужный размер и сушат в сушильных камерах до 10%-ной влажности. Покоробленные отрезки фрезеруют в угол на фуговаль­ном станке, а затем зарезают шипы и проушины на одностороннем шипорезном станке. Бруски с зарезанными шипами склеивают по длине и выдерживают на подстопном месте для схватывания клея. Бруски по длине соединяют на зубча­тый шип.

При раскрое пиломатериалов для соблюдения комплектности в первую оче­редь следует выкраивать вертикальные бруски, так как горизонтальные, имею­щие незначительную длину, получают попутно или выкраивают из отбракован­ных вертикальных брусков.

Обработка заготовок. Полученные после раскроя заготовки обра­батывают с четырех сторон с созданием профиля на полуавтоматической линяй по обработке брусковых деталей. Кроме того, в брусках должны быть зарезаны шипы и проушины.

На тех предприятиях, где отсутствуют линии по обработке брусковых дета­лей, детали обрабатывают следующим образом: бруски, имеющие покороб-ленность и неровности, фрезеруют в угол, т е. пласть и кромку на фуговальном станке, после чего их обрабатывают с четырех сторон на четырехстороннем продольно-фрезерном станке

Обработку заготовок для брусков окон можно вести на пинии ДЛ-ЗА, где выполняются работы по фугованию, обработке с четырех сторон с созда­нием профиля, торцовка и зарезка шипов. На пинии можно обрабатывать бруски длиной до 1800 мм, шириной до 70 мм. Скорость подачи на линии до 24 м/мин.

Бруски коробок выкраивают из пиломатериалов толщиной 60 мм. После сушки их раскраивают на полуавтоматической линии, а затем обрабатывают на линии по обработке брусковых деталей. Если на предприятии нет линий, то обработку ведут следующим образом: раскраивают пиломатериалы на круг­лопильных станках, а затем бруски, имеющие покоробленность и неровности, фрезеруют в угол на фуговальном станке, после чего с четырех сторон с отбор­кой профиля обрабатывают на четырехстороннем продольно-фрезерном стан­ке. Затем на шипорезном станке в вертикальных брусках зарезают шипы, а в горизонтальных — проушины В горизонтальных брусках коробки на цепно-долбежном или на сверлильно-пазовальном станке выбирают гнезда для шипов вер­ти­каль­ного импоста, на этом же станке в импосте выбирают пазы для по­становки планки за­верт­ки замка.

В вертикальных брусках коробки гнезда для петель прорезают на специаль­ном станке, пос­ле чего на рабочем месте ставят полупетли. В брусках, имеющих дефекты, их за­де­лы­ва­ют на станке по высверливанию и заделке сучков В нижнем горизонтальном бруске ко­роб­ки для отвода конденсата прорезают пазы.

Сборку переплетов, коробок производят в сборочных станках. Собранную створку, укладывают на подстопное место для выдержки. После выдержки створки обрабатывают на линии ДЛ-5 или ДЛ-5А или на станках общего назначения. На трехцилиндровом шлифовальном станке или широком рейсмусовом станке зачищают и шлифуют наружные плоскости створок, после чего их укладывают в шаблон и на фрезерном станке обрабатывают по пери­метру. Затем в них выбирают гнезда под петли, причем во внутренних створ­ках—под врезные петли, а во внутренней и наружной—под петли ПНО (рис. 90). Помимо этого во внутренней створке выбирают гнезда под замок за­вертки и отверстия под ручку завертки.

В брусках коробки (импосте) вы­би­ра­ют паз под запорную планку, а в створ­­ках и фор­точ­ке — гнезда под вин­товую стяжку на специальных стан­ках или сверлильно-пазо­валь­ном станке. Оконные коробки собирают в сбо­роч­ном станке ВГК-2 (на клею и на­ге­лях). Шиповые соединения крепят на­­гелями, установленными на клею.

На­гели необ­ходимо ставить во всех уг­лах коробки, а также в местах со­е­ди­нений импоста с горизонтальными брусками заподлицо с плоскостью брус­ков коробки.

При сборке переплетов и коробок необходимо следить за тем, чтобы не было перекосов с угла на угол; правильность сборки проверяют линейкой или шабло­ном. Шиповые соединения коробки должны быть плотными, без зазоров.

При сборке оконного блока навешивают створки и форточки в коробку, подгоняют створки к коробке, устраняя все дефекты и неточности, а затем устанавливают отлив и раскладки по стеклу.


Примерный порядок уста­новки приборов в оконных и балконных блоках со спаренными полотнами при­веден на рис. 91.

Для спаренных пере­плетов и балконных дверей применяют врезные окон­ные завертки натяжного действия с запорными план­ками, имеющим отвер­стия со скосом для натяга засова (язычка) и уплот­нения притвора типа 3В (ГОСТ 5090—73).


Стяжки винтовые (ГОСТ 5090—73) в спаренных переплетах и дверных по­лотнах надо ставить с учетом надежного фиксированного взаимного положения наружных и внутренних створок и полотен. Винты должны отвертываться и завертываться без особых усилий. Оконные и дверные балконные блоки окра­шивают масляными красками (белилами) или эмалями.

1. ПРОГРАММА ВЫПУСКА ПРОДУКЦИИ

Основными видами продукция малого частного предприятия оконный блок со спаренным переплетом, с годовым выпуском 7000 шт.

Таблица 1

Наименование детали

Количество деталей на изделие

Материал

Объем древесины в чистоте м3­

Площадь прочих матери­алов, м2

Годовой выпуск

шт

м3

м2

1

Горизонтальный брусок коробки

2

Пиломатериалы

0,0048598


14000

68,0


2

Вертикальный брусок коробки

2

Пиломатериалы

0,0075482


14000

105,6


3

Импост

1

Пиломатериалы

0,0048598


7000

34,0


4

Горизонтальный брусок фрамуги

2

Пиломатериалы

0,0020097


14000

28,1


5

Вертикальный брусок фрамуги

2

Пиломатериалы

0,0010626


14000

14,8


6

Стекло фрамуги

1

Стекло


0,32

7000


2240

7

Горизонтальный брусок створки

2

Пиломатериалы

0,0020097


14000

28,1


8

Вертикальный брусок створки

2

Пиломатериалы

0,00021


14000

2,9


9

Стекло створки

1

стекло


0,72

7000


5040


ИТОГО






281,5

7280


х) Прочие детали, изделия и материалы учтены в разделе 7.

РЕЖИМ РАБОТЫ И ФОНДЫ ВРЕМЕНИ


Продолжительность рабочий недели - 41 ч.

Число смен -1.

Продолжительность смены - 8 ч.

Фонд времени оборудования и рабочего места Фо = 2000 ч.

Фонд времени рабочего Фр = 1860 ч.

Примечания.

Фонд времени оборудования и рабочего места - это количество часов работы оборудования или рабочего места(например, верстака) в год с учетом выходных и праздничных дней и времени на ремонт оборудования

Фонд времени рабочего - это количество часов работы рабочего в год с учетом выходных и праздничных дней, отпуска рабочего и времени на болезни.

ТРУДОЕМКОСТЬ


Трудоемкость одного изделия (время изготовления одного изделия)

t - 6 ч.

Трудоемкость годовой программы

Т = t * 7000 = 56000 ч.

ОБОРУДОВАНИЕ

Количество оборудования и рабочих мест

О = Т/(Фо*Кз)

О = 56000/(2000*0,8) = 35 шт, где

О - количество оборудования и рабочих мест,

Т - трудоемкость годовой программы,

Фо - фонд времени оборудования и рабочего места,

Кз - коэффициент загрузки оборудования и рабочих мест, который учитывает простои оборудования и рабочих мест.

Состав оборудования приведен в табл. 2.

Таблица 2

Оборудование

Модуль станка

Количество на годовую программу. шт.

  1. Деревообрабатывающие станки

В том числе:


1.1. Станок для прорезки гнезд под петли



1

1.2. Станок для высверливания и заделки сучков

СВСА-2

1

1.3. Фуговальный станок

С2ФЧ-1

1

1.4. Усовочный станок

У6-2

1

1.5. Полуавтоматическая линия брусковых деталей


1

1.6. Горизонтальный сверлильный станок


1

1.7. Шипорезный односторонний станок

Ш015Г-5

1

1.8. Полуавтоматическая линия раскроя заготовок


1

1.9. Специальный станок


1

1.10. Цепедолбежный станок


1

1.11. Линия по обработке створок, форточек


1

1.12. Линия специальных станков


1

ИТОГО ДЕРЕВООБРАБАТЫВАЮЩИХ СТАНКОВ


12

  1. Прочее оборудование

В том числе:

2.1. Станок для склеивания



8

2.2. Сборочный станок

9

2.3. Сушильная камера

3

2.4. Буферный склад

3

ИТОГО ПРОЧЕГО ОБОРУДОВАНИИ


23

ВСЕГО ОБОРУДОВАНИЯ


35


5. РАЗМЕЩЕНИЕ ПРОИЗВОДСТВА И ПЛОЩАДИ


Деревообрабатывающий участок размещается на арендуемых площадях согласно договору об аренде.

Расчет площадей предоставлен в табл. 3.

Таблица.3

Оборудование

*)

Общая площадь

Стоимость арендуемых помещений, руб.

Наименование

Количество

На 1 ед. Оборудования

Всего

Одного

М2

Всего

Деревообрабатывающие станки

12

30

36



Прочее оборудование

23

20

460



ИТОГО

35


820

100

82000

*) Общая площадь включает в себя площадь, занимаемую оборудованием; площадь складочных мест; площадь проходов и проездов; площадь конторы и площадь бытовых помещений (раздевалки, душа, сан-узла).

6. СОСТАВ РАБОТАЮЩИХ


Количество рабочих (Р) определено по трудоемкости годовой программы (Т) и фонду времени рабочего (Фр) и составляет:

Р=Т/Фр=56000/1860=30 чел.

Состав работающих малого частного предприятия «Лицей» приведен в табл. 4.

Таблица 4

Категория работающего

Количество работающих чел.

Обоснование

Годовой фонд заработной платы, руб.

На одного работающего

Всего

Производственный персонал (ПП)





Рабочие

30

см. расчет

18000 (1500х12)

540000

Инженерно-технические работники (мастера)

3

10% от рабочих

24000 (2000х12)

72000

Контролёры

1

3% от рабочих

18000 (1500х12)

18000

ИТОГО ПП

34



630000

Административно-управленческий(АУП) персонал





Директор

1


60000 (5000х12)

60000

Главный бухгалтер

1


54000 (4500х12)

54000

ИТОГО АУП

2



114000

ВСЕГО

36



744000


7. ГОДОВАЯ ПОТРЕБНОСТЬ В МАТЕРИАЛАХ


Таблица 5

Материалы и

Оснастка

Годовая потребность

**)

Стоимость, руб.

Обоснование

древесины

прочих материалов

2

древесины

3

прочих материалов

Общая

в чистоте

М3

с учетом отходов

М3

в чистоте

М2

с учетом отходов,

М2

*)

1. Основные

Материалы









Пиломатериалы

281,5

331,1



800


264880

Стекло



7280

8564,7


36

308329,2

ИТОГО по основным материалам

281,5

331,1

7280

8564,7

800

36

573209,2

2. Прочие:

Изделия, детали, материалы /фурнитура, крепеж и т.д./







57320,9

10% от основных материалов

З. Вспомогательные материалы /шкурка, марля, краска, клей и т.д./







57320,9

10% от

-*-

4. Годовой расход инструмента и приспособлений







57320,9

10%

от -‘-

ВСЕГО







745171,96


х) Годовая потребность материалов с учётом отходов (Уотх) определена по формуле:

Уотх=Учст/Кисп


Учист - годовая потребность основных материалов в чистоте,

Кисп - коэффициент использования материалов (Кисп - 0,86), который учитывает разнообразные отходы в виде стружки, опилок, обрезков и т.д.

хх) Стоимость основных материалов приведена с учетом транспортных услуг.

8. СМЕТА ЗАТРАТ НА ПРОИЗВОДСТВО

Таблица 6

Статьи затрат

Обоснование

Сумма, руб.

Материалы и оснастка

см. раздел. 7

745171,96

энергия всех видов /электроэнергия, теплоэнергия и т.д./

6% от затрат на материалы и оснастку

44710,3

Зарплата производственного и административно-управленческого персонала

см. Раздел. 6

744000

Отчисления на зарплату

в пенсионный фонд, в фонд занятости, в фонд медицинского страхования, в соцстрах

Итого - 40%

44640

Арендная плата за помещение

см. раздел 5

83000

Реклама

10% от затрат на материалы и Оснастку

74517,2

ИТОГО затрат


1736039,4


9. Себестоимость одного изделия


Себестоимость одного изделия определена как частное от деления суммы затрат на производство /см. раздел 8/ и годовой программы выпуска /см. раздел 1/.


С = 1736039,4/7000= 248 руб.


10. Цена одного изделия


Цена одного изделия /Ц/ определена как сумма себестоимости одного

изделия /С/, ожидаемой прибыли /П/ ин налога на добавленную стоимость /НДС/.

Ц =С+По+НДС = 248 + 74,4 + 64,4= 386,8 руб.

где: По = 0,З.С= 0,3. 248 = 74,4 руб.

НДС =0,2(С+По) =0,2(248+74,4) = 64,4 руб.


11. ОСНОВНЫЕ ДАННЫЕ И ТЕХНИКО-ЭКОНОМИЧЕСКИЕ ПОКАЗАТЕЛИ

Таблица 7

Данные и показатели

Деревообрабатывающий

участок малого частного предприятия

"Лицей"

А. Основные данные


1. Программа выпуска продукции


Изделие-представитель оконный блок со спаренным переплетем, шт

7000

2. Трудоемкость годового выпуска продукции, ч

56000

3. Оборудование и рабочие места, шт

35

В том числе:


Деревообрабатывающие станки

12

прочее оборудование

22

4. Общая площадь арендуемых помещений, м

820

5. Численность работающих, чел.

В том числе:

36

а) производственный персонал

34

Из них

рабочие

инженерно-технические работники

(мастера)

контролеры


33

3


1

б) административно-управленческий

персонал


Из них

директор


1

главный бухгалтер

1

6. Годовая потребность в основных

материалах,

древесные материалы, м3

прочие материалы, м2


331,1

7. Сумма затрат на производство, руб.

1736039,4

8. Себестоимость одного изделия, руб.


9. Цена одного изделия, руб.

395


386,8

Б. Показатели

*)

  1. Производительность труда (выработка в год на 1 рабочего), м

  2. Коэффициент использования материала

  3. Рентабельность предприятия **)


10.03


0,85

0,3

х) Выработка в год на 1 рабочего определена как частное от деления годовое потребности в основных материалах (древесины) и количества рабочих.

хх) Рентабельность предприятия (Р)

Р=П/С, где

П - прибыль,

С - себестоимость продукции.


Технологическая карта








1

2

3

4

5

6

Оконный блок со спаренными переплетами


Оконная коробка






Вертикальные бруски



1

Раскрой по длине и ширине

Полуавтоматическая линия раскроя заготовок




2

Сушка отходов от раскроя

Сушильная камера




3

Фрезирование в угол

Фуговальный станок

С-2Ф4-1

Ножевая головка

Направляющая линейка

4

Зарезка шипов

Односторонний шипорезный станок

Ш0151-5

Фрезы, пильный диск


5

Склеивание брусков по длине

Станок для склеивания




6

Хранение и комплектация заготовок

Буферный склад




7

Обработка сторон с созданием профиля и зарезкой шипов

Полуавтоматическая линия брусковых деталей




8

Высверливание и заделка сучков

Станок для высверливания и заделки сучков

СВСА-2

сверло

Зажимное приспособление

9

Прорезка гнезд под петли

Станок для резки гнезд под петли




10

Постановка полупетель

Рабочее место




11

Хранение и комплектация деталей

Буферный склад





Горизонтальные бруски

(верхний и нижний)




1

Раскрой по длине и ширине

Полуавтоматическая линия раскроя заготовок




2

Сушка отходов от раскроя

Сушильная камера




3

Фрезирование в угол

Фуговальный станок

С-2Ф4-1

Ножевая головка

Направляющая линейка

4

Зарезка шипов

Односторонний шипорезный станок

Ш0151-5

Фрезы, пильный диск


5

Склеивание брусков по длине

Станок для склеивания




6

Хранение и комплектация заготовок

Буферный склад











1

2

3

4

5

6

7

Обработка сторон с созданием профиля и зарезкой шипов

Полуавтоматическая линия брусковых деталей




8

Выборка гнезда под шипы

Цепнодолбежный станок




9

Высверливание и заделка сучков

Станок для высверливания и заделки сучков

СВСА-2

сверло

Зажимное приспособление

10

Хранение и комплектация заготовок

Буферный склад




11

Сборка

Сборочный станок





ИМПОСТ





1

Раскрой по длине и ширине

Полуавтоматическая линия раскроя заготовок




2

Сушка отходов от раскроя

Сушильная камера




3

Фрезирование в угол

Фуговальный станок

С-2Ф4-1

Ножевая головка

Направляющая линейка

4

Зарезка шипов

Односторонний шипорезный станок

Ш0151-5

Фрезы, пильный диск


5

Склеивание брусков по длине

Станок для склеивания




6

Хранение и комплектация заготовок

Буферный склад




7

Обработка сторон с созданием профиля и зарезкой шипов

Полуавтоматическая линия брусковых деталей




8

Выборка гнезда под язычок и планку завертки.

Вертикально-сверлильный станок




9

Высверливание и заделка сучков

Станок для высверливания и заделки сучков

СВСА-2

сверло

Зажимное приспособление

10

Хранение и комплектация заготовок

Буферный склад





Оконные створки

(вертикальные и горизонтальные бруски)




1

Раскрой по длине и ширине

Полуавтоматическая линия раскроя заготовок




2

Сушка отходов от раскроя

Сушильная камера




3

Фрезирование в угол

Фуговальный станок

С-2Ф4-1

Ножевая головка

Направляющая линейка








1

2

3

4

5

6

4

Зарезка шипов

Односторонний шипорезный станок

Ш0151-5

Фрезы, пильный диск


5

Склеивание брусков по длине

Станок для склеивания




6

Хранение и комплектация заготовок

Буферный склад




7

Обработка сторон с созданием профиля и зарезкой шипов

Полуавтоматическая линия брусковых деталей




8

Высверливание и заделка сучков

Станок для высверливания и заделки сучков

СВСА-2

сверло

Зажимное приспособление

9

Склеивание брусков по длине

Станок для склеивания




10

Сборка створок форточек

Сборочный станок




11

Зачистка провесов, обработка по периметру

Линия по обработке створок форточек




12

Прорезка гнезд под петли

Специальный станок




13

Выборка гнезд под замок, завертки, отверстия под винты

Линия специальных станков




14

Крепление уголь­ни­ков, постановка рас­кладок

Линия (конвейер)




15

Навеска створок между собой, постановка винтов

Линия (конвейер)




16

Навеска створок в коробку

Рабочее место










Страница 32


 
© 2012 Рефераты, доклады, дипломные и курсовые работы.